Galpão, Cidade Industrial, 59 Vagas
  • (31) 3224-2400
R$ 140.000,00

Descrição do anúncio

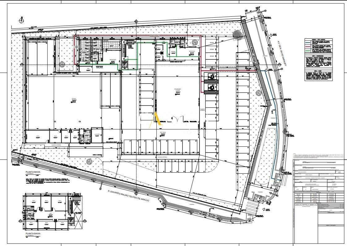
Excelente oportunidade para Concessionária em área estratégica (Av. Tito Fulgêncio), ao lado de 3 concessionárias (Honda, Nissan e Hyundai) e próxima de mais outras 6 concessionárias (Renault, Ford, Jeep, Fiat, Peugeot e Citroen), em um raio de apenas 3km. Projeto já aprovado especificamente para essa área de alta visibilidade (esquina!) e fluxo intenso de potenciais clientes, em função das concessionárias e afins estabelecidos no local. Lojão com 2.280m2, 54 vagas para carros e 5 vagas para caminhões (carga e descarga). Proprietário com disponibilidade de início de construção imediata (BTS). Fotos adicionais , solicitar ao corretor do atendimento * Valores de IPTU sujeitos a alteração sem aviso prévio. * IPTU R$ 151.330,87 (anual parcelado conforme exercício de cada prefeitura).

Detalhe do anúncio

  • Bairro:
    Cidade Industrial
  • Área:
    2280
  • Tamanho:
    6336
  • Número de Vagas:
    59
  • Idade do Imóvel:
    2026
  • Cidade:
    Contagem
  • Estado:
    Mg
Contate o anunciante
(31) 3224-2400
Publicidade

Últimos anúncios visualizados